miet-boot-sagt
Miet-Boot:
Freizeit- und Erholungswochenende in Buchholz zusammen mit der Familie oder Freunden erleben. Die aufgehende Sonne über dem Wasser am Morgen genießen. Bei unbezahlbarem Seeblick, Vogelgezwitscher und einer dampfenden Tasse Kaffee auf dem Tisch die Seele baumeln lassen. Auf unseren komfortabel eingerichteten Hausboot ist ein erholsamer Urlaub Programm.
  • Name : Magellan
  • Zugelassen für bis zu: 6 Personen
  • Motorart: Aussenborder / 15 PS / 15 PS
  • Führerscheinfrei: ja
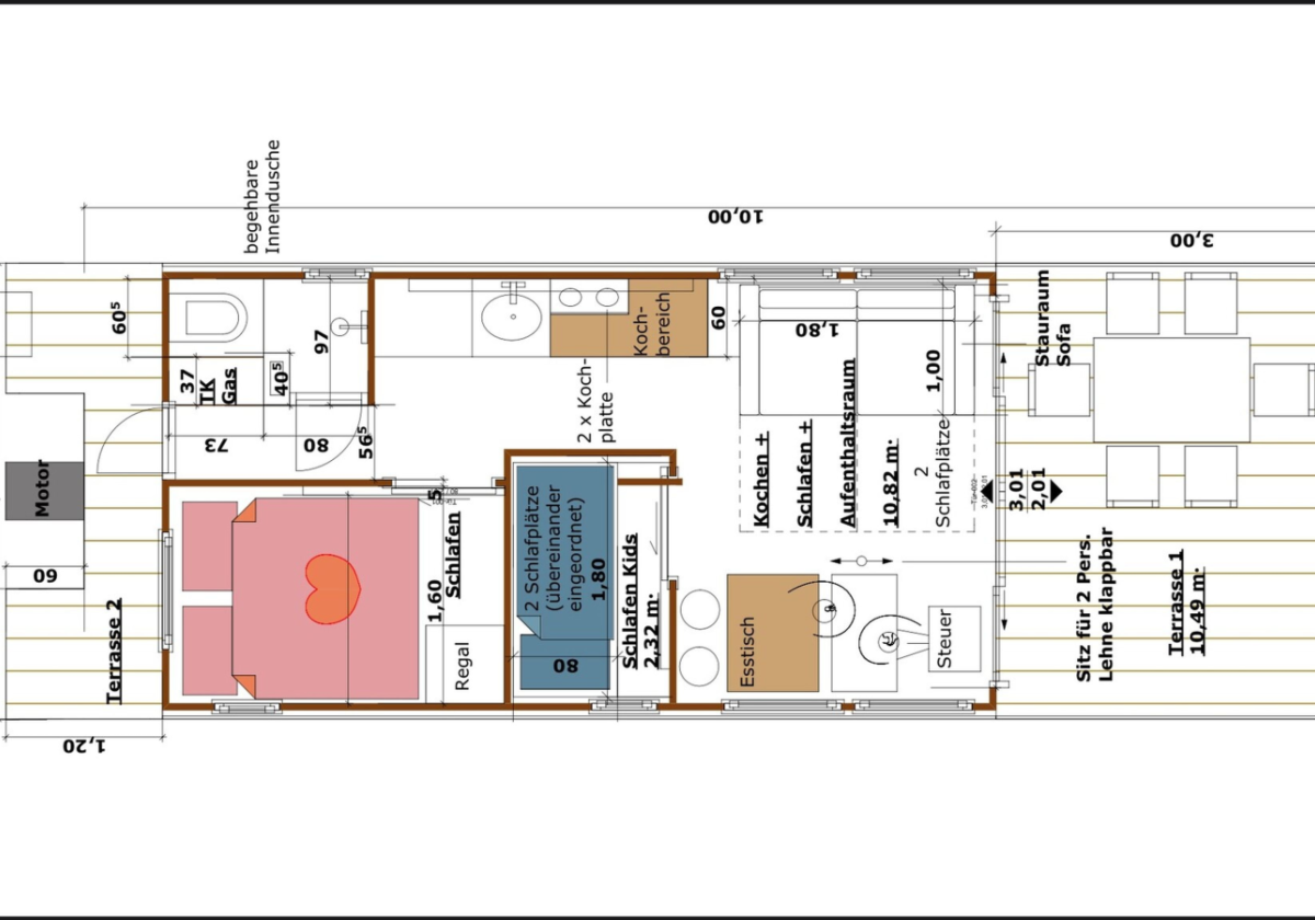
  • Länge: 10,00m
  • Breite: 3,80m
  • Tiefgang: 0,60m
  • Max Höhe mit Verdeck : 2,80m
  • Bootsmodell : TS1000
  • Anzahl von Kabinen : 2
  • Anzahl von Bädern : 1
  • Typ: Hausboot
  • Bootshersteller : Tom Sawyer
  • Hersteller Jahr : 2021

Die Hausboote der Reihe „TS1000“ sind sehr gut für Jeden geeignet, der sich auf den Urlaub in der Natur besinnt. Die Hausboote sind auf Grund Ihrer großzügigen Aufteilung sehr gut für Familien geeignet. Auch eine Angeltour ist mit den Hausbooten sehr gut möglich.

Das Hausboot ist mit einem 15 PS Außenbordmotor ausgestattet und darf somit führerscheinfrei gefahren werden.

Im Innenbereich findet sich ein Fahrerstand und ein großzügiger offenen Wohn- Küchenbereich mit einer Couch mit Umbaufunktion, für 2 weitere Schlafplätze.

In zwei separaten Kabinen befindet sich einmal ein Doppelstockbett und in der anderen Kabine findet der Kunde ein großzügiges Doppelbett.

Mit an Bord befindet sich eine Nasszelle mit WC und Dusche.


Ausstattung:

  • Toilette
  • Badeleiter vorhanden
  • Schwimmreifen vorhanden
  • Schwimmweste
  • Kühlschrank
  • Rettungsring vorhanden
  • Heizung vorhanden
  • Radio / Bluetooth
  • USB-Dose vorhanden
  • Bugstrahlruder / Ja
  • TV
  • Konverter von 12V zu 220V
  • Küche
  • Geschirr
  • Gasherd
  • Vollkaskoversicherung inklusive
  • Vollkaskoversicherung nicht enthalten
  • Haftpflichtversicherung inklusive
  • Haftpflichtversicherung exklusive

Geeignet für folgende Events:

  • Hochzeit
  • Christi Himmelfahrt
  • Junggesellenabschied
  • Junggesellinnenabschied
  • Tagung & Kongress
  • Film & Foto
  • PR & Marketing Event
  • Firmenevent
  • Privat Party
  • Weihnachtsfeier
  • Wochenendausflug
  • Urlaub
  • Nachtfahrten / Sonderfahrten
  • Abendteuerurlaub
  • Tagesausflug
  • Teambildung
miet-boot-sagt
Wann benötigst du einen Bootsführerschein?

Wann benötigst du einen Bootsführerschein? Welche Voraussetzungen und Regelungen gelten in Deutschland, um ein Hausboot wie das "Magellan" (mit einer Länge von 10,00m und einer Breite von 3,80m) in und um die Seen und Binnengewässer von Buchholz ohne Bootsführerschein zu steuern?

Alle Infos zum Bootsführerschein

Buchungsinformation für dich als Kunde

Kraftstoff nach Verbrauch! Die optionalen Extras (verpflichtend oder nicht) sind bitte bei Anreise zu zahlen!

Hafeninformation:

Standort: Seepromenade 1 - 17209 Buchholz
  • Imbiss
  • Restaurant
  • WC
  • Dusche
  • Parkplatz
  • bietet Charterscheinkurs an

Unser Hafen ist ein echter Naturhafen, ruhig und grün gelegen neben dem beschaulichen Ort Buchholz in Mecklenburg Vorpommern. Geschützt in einer Bucht am Ende des Müritzsees ist die Lage ideal für jede Art von Booten. Wind und Welle haben wir wegen der Lage kaum, der Hafen ist von hohen Bäumen umgeben und Wellen haben in der Bucht keine Chance sich aufzubauen.


Unsere moderne Schwimmsteganlage ist mit allem ausgestattet, was du brauchst: Ausreichend Landstromanschlüsse einzeln mit 16 Ampere abgesichert, Frischwasser immer in Reichweite und zwei Abpumpstationen an denen es sich nie staut. Für entsprechend ausgestattete Boote können wir auch direkt am Liegeplatz ver- und entsorgen, was speziell im Winter interessant ist wenn du weniger fahren willst.


Im Sommer wie im Winter liegt dein Boot bei uns geschützt und geschätzt.


Die Müritz und die Mecklenburgischen Gewässer sind das schönste Wassersportrevier in Deutschland, was sich wegen der Charterscheinregelung auch ohne Bootsführerschein entdecken lässt.

Anzeige teilen:

Möchtest du diese Anzeige mit deinen Freunden teilen? Wir freuen uns über jede Weiterempfehlung!

Im Zeitraum buchbar:

Mo-So im Zeitraum vom 20.04. - 23.05. um 13:00 Uhr
1390,00 € / 7 Nacht/Nächte
Mo-So im Zeitraum vom 23.05. - 13.06. um 13:00 Uhr
1539,00 € / 7 Nacht/Nächte
Mo-So im Zeitraum vom 13.06. - 22.08. um 13:00 Uhr
1639,00 € / 7 Nacht/Nächte
Mo-So im Zeitraum vom 22.08. - 19.09. um 13:00 Uhr
1539,00 € / 7 Nacht/Nächte
Mo-So im Zeitraum vom 19.09. - 31.10. um 13:00 Uhr
1390,00 € / 7 Nacht/Nächte
inkl. Bettwäsche/Handtuch - Set
inkl. Parkplatz
inkl. CX - Skippertraining
inkl. CX - Servicepauschale
inkl. CX - Endreinigung mittleres Boot

7 Nächte Tom Sawyer Boot